BYT - TOMÁŠIKOVA UL. BRATISLAVA

Autori: Maroš Fečík, Filip Kandravý /plusminusarchitects

Miesto: Tomášikova ul., Bratislava, Ružinov

Projekt: 01/2019-06/2019

Realizácia: 07/2019-05/2020

Veľkosť priestoru: 124m2

Foto: Maroš Fečík

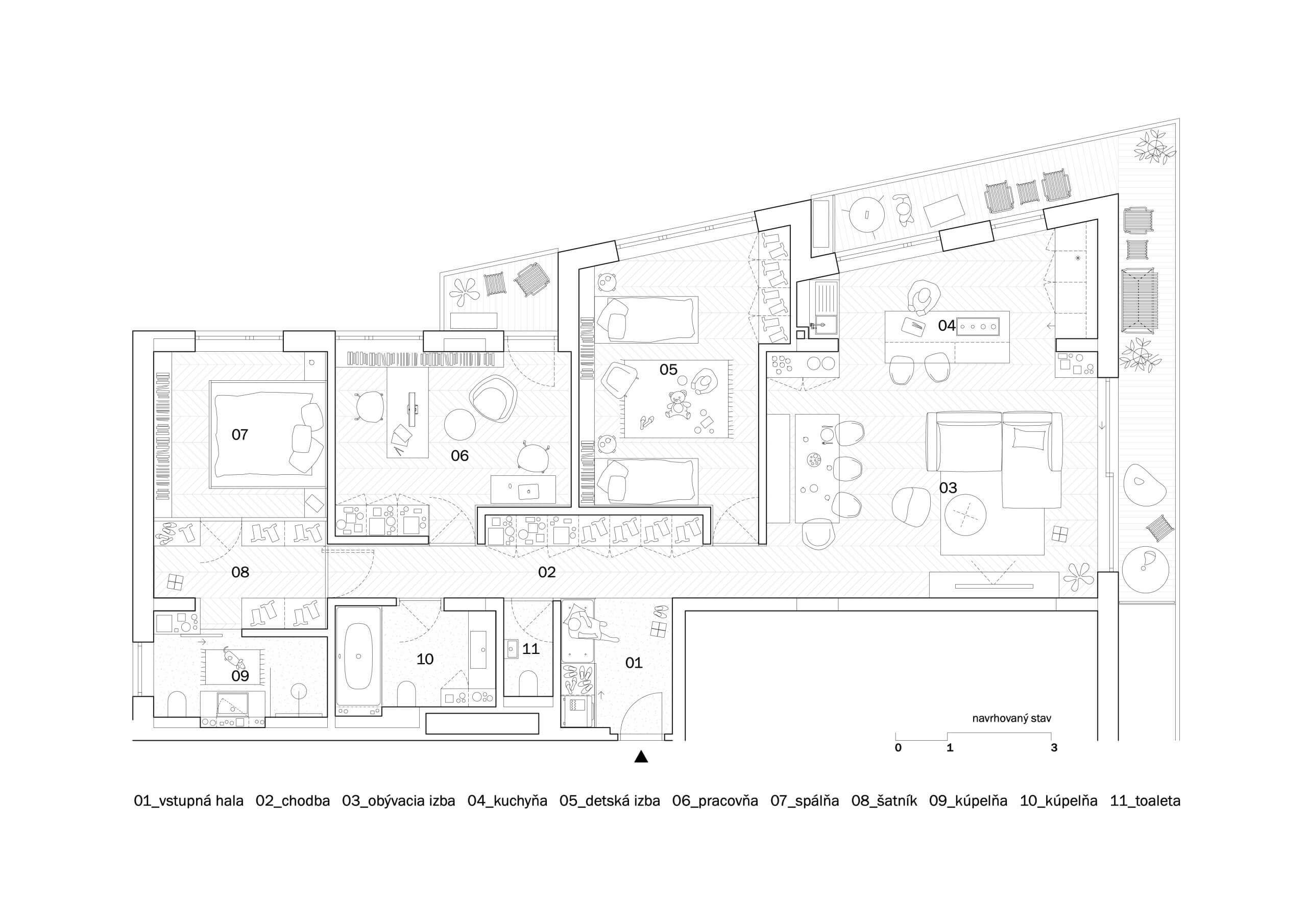
Dá sa zanedbaný štvorizbový byt, nachádzajúci sa v polyfunkčnom bytovom dome z roku 2007, po zmene majiteľa premeniť na príjemný, pohodový a nadčasový priestor? Pôvodná dispozícia si so sebou niesla nepríjemné znaky spojenia dvoch menších bytov do jedného väčšieho. Nelogické usporiadanie priestorov, ako aj ich zvláštne dimenzie však neprevážili nad pozitívami bytu v rohovej/koncovej polohe na najvyššom podlaží bytového domu s výhľadmi na 3 svetové strany, Kuchajdu, Karpaty a Kamzík. 

Byt kompletne očisťujeme od nenosných konštrukcií, podláh a pozostatkov (ne)vkusu pôvodných majiteľov. Ponechávame len nosné prvky skeletovej konštrukcie spolu s obvodovými múrmi a začíname priestor ohýbať podľa požiadaviek budúcich obyvateľov. Preusporadúvame poradie izieb a funkčných zón, skrývame všetko čo nemá byť vidieť a vytvárame kontinuálne hygienické jadro. Vzniká plne vybavené intímne krídlo rodičovskej spálne, pridávame pracovňu a detskú izbu pre malého nezbedníka. Meníme dispozičný koncept kuchyne a otvárame ju viac do obývacej izby. Varenie je divadlo a kuchyňa je srdcom bytu. Jaseň, dub, betón, terrazzo, nerez, tehla, koža. Neutrálnu monochromatickosť podkladových vrstiev dopĺňame hrou so štruktúrou a textúrou použitých materiálov. Postačí takáto farebná paleta ako podklad k prirodzenej dynamike života?

byt_Tomasikova-1770px-2
byt_Tomasikova-1770px-4
byt_Tomasikova-1770px-9
byt_Tomasikova-1770px-5
byt_Tomasikova-1770px-16
byt_Tomasikova-1770px-15
01_povodny-stav-1
02_navrhovany-stav-1
byt_Tomasikova-1770px-12
byt_Tomasikova-1770px-11
byt_Tomasikova-1770px-10
byt_Tomasikova-1770px-14
byt_Tomasikova-1770px-17
byt_Tomasikova-1770px-18
byt_Tomasikova-1770px-19
byt_Tomasikova-1770px-21
byt_Tomasikova-2340px-1
byt_Tomasikova-2340px-7
byt_Tomasikova-2340px-8
byt_Tomasikova-2340px-3
byt_Tomasikova-2340px-22
byt_Tomasikova-2340px-25
byt_Tomasikova-2340px-26
byt_Tomasikova-2340px-28
byt_Tomasikova-1770px-33
byt_Tomasikova-1770px-29
byt_Tomasikova-1770px-30
byt_Tomasikova-1770px-27
byt_Tomasikova-1770px-31
byt_Tomasikova-2340px-35

Potrebujete pomôcť s vašim projektom?

Nasleduje:

KONTAKTY:

Maroš Fečík, 0905518478

fecik@plusminusarchitects.com

Filip Kandravý, 0948015480

kandravy@plusminusarchitects.com


DATA:

plusminusarchitects, s.r.o.

Grösslingová 41, 811 09 Bratislava

IČO: 36698636

IČDPH: SK2022275046


SOCIÁLKY:

instagram

facebook


© 1997-2024 plusminusarchitects